A major new development proposal in downtown Milton is aiming to turn a long-vacant industrial site into a vibrant, walkable community that blends housing, nature, and commercial space.
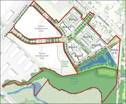
Neatt Communities has submitted plans for Mountainview West, a mixed-use neighbourhood to be built at the corner of Steeles Avenue and Martin Street, along the scenic Sixteen Mile Creek.
The proposed 38-acre site – previously a brownfield – has undergone two years of environmental remediation, with 20,000 truckloads of contaminated material removed and over 6,500 native plants added. The project includes the restoration of wetlands and the creation of 13 acres of new Natural Heritage System lands, expanding green space and wildlife habitats.
A standout feature of Mountainview West is its planned “Green Spine,” a central network of trails, open spaces, and gathering areas that will connect Sixteen Mile Creek to the new neighbourhood. A pedestrian and cyclist-friendly trail system will offer seamless integration with Milton’s existing trail network and downtown core.
Phase 1 of the development proposes over 1,000 residential units – ranging from townhouses to mid-rise buildings – as well as new commercial space, a pondside promenade, and a stormwater management pond. The goal is to add new homes and jobs within walking distance of local shops, schools, and restaurants.
The Town of Milton is now reviewing the application, which includes requests for an Official Plan Amendment, Zoning By-law Amendment, and Draft Plan of Subdivision. A public information session will be held to allow residents to learn more and share their feedback, with the date to be announced.
For updates and full application details, click here.
If you have a news tip or story idea, you can now send us a heads up via email at:
- News1013@LocalRadio.ca (Milton)
- News1015@LocalRadio.ca (Orangeville)
- News92@LocalRadio.ca (South Simcoe)
If you’d like to get ahold of me personally, shoot me a message at Cameron.Wilkinson@LocalRadio.ca. We’re in the business of content creation, so no idea is a bad idea.









